Vente Maison mitoyenne neuve neuf Villars-les-dombes
2 pieces 58 m2 - France

Maison mitoyenne neuve neuf Villars-les-dombes

Contact mail
VILLARS-LES-DOMBES Maison 58 m2 179 000 €

Maison mitoyenne neuve neuf
VILLARS-LES-DOMBES ( 01330 )
2 pieces - 58 m2

179 000 € *(H.C.V)


Ref : ID177210

A propos du bien à vendre VILLARS-LES-DOMBES (01330) - ID177210

Maison mitoyenne neuve neuf VILLARS-LES-DOMBES - 58 m2
Annonce ID177210 - Mandat N° : 002471 ( Maison mitoyenne neuve neuf VILLARS-LES-DOMBES (01330))

Annonce ID177210 - Mandat N° : 002471

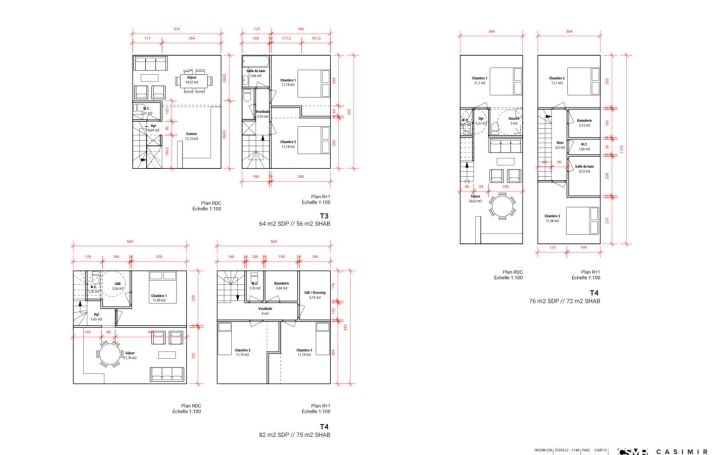
Proche VILLARS LES DOMBES 5 mn - au calme et centre village - projet maison neuve à partir de 179 000 € du T3 au T4 - comprenant pour le T3 au rez-de-chaussée: cuisine ouverte sur le séjour - toilette - au 1er étage : deux chambres - salle de bain - toilette - dégagement - surface habitable 58 m2 - deux places de parking - comprenant pour le T4 au rez-de-chaussée: cuisine ouverte sur le séjour - une chambre - salle d'eau - toilette - dégagement - au 1er étage : deux chambres - salle de bain - toilette - buanderie - dégagement - deux places de parking - frais de notaire réduit - garantie décennale - pompe à chaleur - normes 2020 - Mentions légales : Proposé à la vente à 179000 Euros (honoraires à la charge du vendeur) - Classe-Energie C : 135 kWh.m2.an - Bien en copropriété comprenant 10 lots et 10 copropriétaires - Charges annuelles : 600 Euros/an (soit 50 Euros/mois) - PROST immobilier - - Pour plus d'informations, contactez notre agence au 04 37 86 12 44 - Les informations sur les risques auxquels ce bien est exposé sont disponibles sur le site Géorisques : www.georisques.gouv.fr

Aspect général Maison mitoyenne neuve neuf VILLARS-LES-DOMBES

  • Surface hab. 58 m2
  • Nombre de pièces 2
  • Nombre de chambres 1
  • Niveau/étage 1
  • Chauffage Aerothermie Individuel
  • Exposition Traversant Ouest-Est
  • Année 2026

Infos Copropriété Maison mitoyenne neuve neuf VILLARS-LES-DOMBES

  • Bien en copropriété Oui
  • Nombre de lots 10
  • Syndicat des copropriétaires Aucune procédure en cour

Aspect financier Maison mitoyenne neuve neuf VILLARS-LES-DOMBES

  • Prix de vente 179 000 € TTC
  • Honoraires à la charge du vendeur
  • Charge de copropriété 600 € TTC soit ( 50,00 € / mois)

Le bien Maison mitoyenne neuve est un produit Neuf à Villars-les-dombes. Renseignez vous sur l'investissement dans un bien de type Maison mitoyenne neuve Neuf car il peut permettre une réduction des frais de notaires. Ce logement est en vente mis en ligne par un agent du Réseau Immo-Diffusion de Villars-les-dombes. Retrouvez d'autres biens dans la catégorie immobilier vente Maison Villars-les-dombes neuf

Performance energétique annonce ID177210

Non soumis au DPE

Gaz à effet de serre annonce ID177210

Non soumis au GES


Pour plus d'informations sur le bien ID N° : ID177210 Maison mitoyenne neuve Villars-les-dombes Remplissez le formulaire ou appelez notre secrétariat.

MICHEL BLONDEAU (Maison mitoyenne neuve neuf Villars-les-dombes )

Contact Vente Maison mitoyenne neuve neuf Villars-les-dombes

Envoyer
* champs requis

Pour plus d'informations sur le bien ID N° : ID177210 Maison mitoyenne neuve Villars-les-dombes
Remplissez le formulaire ou appelez notre secrétariat.

** Agent commercial MICHEL BLONDEAU Adhérent du Réseau IMMO DIFFUSION - document non contractuel
*(H.C.V) : Honoraires charge vendeur

Annonce ID177210 - Mandat N° : 002471

Vente Maison mitoyenne neuve
VILLARS-LES-DOMBES 2 pieces 58 m2
179 000 €


Maison   VILLARS-LES-DOMBES  58 m2 179 000 €

Proche VILLARS LES DOMBES 5 mn - au calme et centre village - projet maison neuve à partir de 179 000 € du T3 au T4 - comprenant pour le T3 au rez-de-chaussée: cuisine ouverte sur le séjour - toilette - au 1er étage : deux chambres - salle de bain - toilette - dégagement - surface habitable 58 m2 - deux places de parking - comprenant pour le T4 au rez-de-chaussée: cuisine ouverte sur le séjour - une chambre - salle d'eau - toilette - dégagement - au 1er étage : deux chambres - salle de bain - toilette - buanderie - dégagement - deux places de parking - frais de notaire réduit - garantie décennale - pompe à chaleur - normes 2020 - Mentions légales : Proposé à la vente à 179000 Euros (honoraires à la charge du vendeur) - Classe-Energie C : 135 kWh.m2.an - Bien en copropriété comprenant 10 lots et 10 copropriétaires - Charges annuelles : 600 Euros/an (soit 50 Euros/mois) - PROST immobilier - - Pour plus d'informations, contactez notre agence au 04 37 86 12 44 - Les informations sur les risques auxquels ce bien est exposé sont disponibles sur le site Géorisques : www.georisques.gouv.fr

Caractéristiques
Surface hab. 58 m2
Nombre de pièces 2
Nombre de chambres 1
Niveau/étage 1
Chauffage Aerothermie Individuel
Exposition Traversant Ouest-Est
Année 2026
DPE classé

NS

N.C
GES classé

NS

N.C



Réseau IMMO-DIFFUSION

01320 CHALAMONT

Réseau IMMO-DIFFUSION Numero vert centrale immobilière de Professionnels indépendants IMMO-DIFFUSION

Adhérent du Réseau IMMO DIFFUSION

IMMO-DIFFUSION