Vente Maison à terminer avec garage et jardin Saint-etienne-du-valdonnez
96 m2 Terrain 640 m2 - France

Sous compromis
Contact mail

Sous compromis

SAINT-ETIENNE-DU-VALDONNEZ Maison 96 m2 156 000 €

Maison à terminer avec garage et jardin
SAINT-ETIENNE-DU-VALDONNEZ ( 48000 )
96 m2

A propos du bien à vendre SAINT-ETIENNE-DU-VALDONNEZ (48000) - ID165679

Maison à terminer avec garage et jardin SAINT-ETIENNE-DU-VALDONNEZ - 96 m2
Annonce ID165679 - Mandat N° : 002477

Annonce ID165679 - Mandat N° : 002477

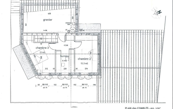
Maison individuelle à terminer avec terrain et garage. Située dans un secteur calme - elle se compose au rez-de-chaussée d'une grande pièce aménageable en cuisine/séjour et une seconde pièce permettant la création d'une chambre - une salle de bains et un W.C séparé. À l'étage - deux chambres supplémentaires sont envisageables avec un bureau ou une seconde salle de bains. Des combles - un garage de 60 m2 et une cave complètent ce bien. Maison située à 12 km de Mende seulement. Exposition Sud. Emplacement calme. - Mentions légales : Proposé à la vente à 156000 Euros (honoraires à la charge du vendeur) - Classe-Energie G : 1015 kWh.m2.an - SOLOGEC IMMOBILIER - - Pour plus d'informations, contactez notre agence au 04 66 49 18 52

Aspect général Maison à terminer avec garage et jardin SAINT-ETIENNE-DU-VALDONNEZ

  • Surface hab. 96 m2
  • Nombre de pièces N.C
  • Nombre de chambres N.C
  • Chauffage Aucun
  • Extérieurs Terrain de 640 m2
  • Exposition Sud

Aspect financier Maison à terminer avec garage et jardin SAINT-ETIENNE-DU-VALDONNEZ

Sous compromis

  • Prix de vente 156 000 € TTC
  • Honoraires à la charge du vendeur

Performance energétique annonce ID165679

Données non exploitables

Gaz à effet de serre annonce ID165679

Données non exploitables


Pour plus d'informations sur le bien ID N° : ID165679 Maison à terminer avec garage et jardin Saint-etienne-du-valdonnez Remplissez le formulaire ou appelez notre secrétariat.

Jeremy BERGONHE (Maison à terminer avec garage et jardin Saint-etienne-du-valdonnez )

Contact Vente Maison à terminer avec garage et jardin Saint-etienne-du-valdonnez

Envoyer
* champs requis

Pour plus d'informations sur le bien ID N° : ID165679 Maison à terminer avec garage et jardin Saint-etienne-du-valdonnez
Remplissez le formulaire ou appelez notre secrétariat.

** Agent immobilier Jeremy BERGONHE Adhérent du Réseau IMMO DIFFUSION - document non contractuel
*(H.C.V) : Honoraires charge vendeur

Annonce ID165679 - Mandat N° : 002477

Vente Maison à terminer avec garage et jardin
SAINT-ETIENNE-DU-VALDONNEZ 96 m2 Sous compromis


Maison   SAINT-ETIENNE-DU-VALDONNEZ  96 m2 156 000 €

Maison individuelle à terminer avec terrain et garage. Située dans un secteur calme - elle se compose au rez-de-chaussée d'une grande pièce aménageable en cuisine/séjour et une seconde pièce permettant la création d'une chambre - une salle de bains et un W.C séparé. À l'étage - deux chambres supplémentaires sont envisageables avec un bureau ou une seconde salle de bains. Des combles - un garage de 60 m2 et une cave complètent ce bien. Maison située à 12 km de Mende seulement. Exposition Sud. Emplacement calme. - Mentions légales : Proposé à la vente à 156000 Euros (honoraires à la charge du vendeur) - Classe-Energie G : 1015 kWh.m2.an - SOLOGEC IMMOBILIER - - Pour plus d'informations, contactez notre agence au 04 66 49 18 52

Caractéristiques
Surface hab. 96 m2
Nombre de pièces N.C
Nombre de chambres N.C
Chauffage Aucun
Extérieurs Terrain de 640 m2
Exposition Sud
DPE classé

NE

N.C
GES classé

NE

N.C



Réseau IMMO-DIFFUSION

48000 MENDE

Réseau IMMO-DIFFUSION Numero vert centrale immobilière de Professionnels indépendants IMMO-DIFFUSION

Adhérent du Réseau IMMO DIFFUSION

IMMO-DIFFUSION