Vente Maison Avec local pro sur la 613 ! rénové(e) Saint-jean-de-vedas
160 m2 - France

Maison restauré(e) Saint-jean-de-vedas

Sous compromis
Contact mail

Sous compromis

SAINT-JEAN-DE-VEDAS Maison 160 m2 289 000 €

Maison Avec local pro sur la 613 ! rénové(e)
SAINT-JEAN-DE-VEDAS ( 34430 )
160 m2

A propos du bien à vendre SAINT-JEAN-DE-VEDAS (34430) - ID152727

Maison Avec local pro sur la 613 ! rénové(e) SAINT-JEAN-DE-VEDAS - 160 m2
Annonce ID152727 - Mandat N° : 003700

Annonce ID152727 - Mandat N° : 003700

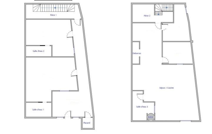
Exclusivité - habitation + poss local pro rdc ! Prox tram - et futures halles - sur la D 613 local commercial de 2 X 80m2 de SDP entièrement rénové - visibilité - flux piéton - flux véhicule impres... nombreuses places de park dont 2 dev tout commerce - accès handicapé ERP - Mentions légales : Proposé à la vente à 289000 Euros (honoraires à la charge du vendeur) - Classe Energie D : 217 kWh.m2.an - (DPE ancienne version) - Laurent ALIAGA L'Expert Immobilier - - Pour plus d'informations, contactez notre agence au 06 87 48 40 15

Aspect général Maison Avec local pro sur la 613 ! rénové(e) SAINT-JEAN-DE-VEDAS

  • Surface hab. 160 m2
  • Nombre de pièces N.C
  • Nombre de chambres N.C
  • Niveau/étage Duplex
  • Chauffage Electrique
  • Exposition Sud
  • Année 1940

Aspect financier Maison Avec local pro sur la 613 ! rénové(e) SAINT-JEAN-DE-VEDAS

Sous compromis

  • Prix de vente 289 000 € TTC
  • Honoraires à la charge du vendeur

Maison à Saint-jean-de-vedas venant de subir des travaux de rénovation. Ce logement est en vente mis en ligne par un agent du Réseau Immo-Diffusion de Saint-jean-de-vedas. Retrouvez d'autres biens dans la catégorie immobilier vente Maison Saint-jean-de-vedas rénové(e)

Performance energétique annonce ID152727

D

Gaz à effet de serre annonce ID152727

B


Pour plus d'informations sur le bien ID N° : ID152727 Maison Avec local pro sur la 613 ! rénové(e) Saint-jean-de-vedas Remplissez le formulaire ou appelez notre secrétariat.

LAURENT ALIAGA (Maison Avec local pro sur la 613 ! rénové(e) Saint-jean-de-vedas )

Contact Vente Maison Avec local pro sur la 613 ! rénové(e) Saint-jean-de-vedas

Envoyer
* champs requis

Pour plus d'informations sur le bien ID N° : ID152727 Maison Avec local pro sur la 613 ! Saint-jean-de-vedas
Remplissez le formulaire ou appelez notre secrétariat.

** Agent immobilier LAURENT ALIAGA Adhérent du Réseau IMMO DIFFUSION - document non contractuel
*(H.C.V) : Honoraires charge vendeur

Annonce ID152727 - Mandat N° : 003700

Vente Maison Avec local pro sur la 613 !
SAINT-JEAN-DE-VEDAS 160 m2 Sous compromis


Maison   SAINT-JEAN-DE-VEDAS  160 m2 289 000 €

Exclusivité - habitation + poss local pro rdc ! Prox tram - et futures halles - sur la D 613 local commercial de 2 X 80m2 de SDP entièrement rénové - visibilité - flux piéton - flux véhicule impres... nombreuses places de park dont 2 dev tout commerce - accès handicapé ERP - Mentions légales : Proposé à la vente à 289000 Euros (honoraires à la charge du vendeur) - Classe Energie D : 217 kWh.m2.an - (DPE ancienne version) - Laurent ALIAGA L'Expert Immobilier - - Pour plus d'informations, contactez notre agence au 06 87 48 40 15

Caractéristiques
Surface hab. 160 m2
Nombre de pièces N.C
Nombre de chambres N.C
Niveau/étage Duplex
Chauffage Electrique
Exposition Sud
Année 1940
DPE classé

D

217.00 (KWH/M2/AN)
GES classé

B

7.00 (KWH/M2/AN)



Réseau IMMO-DIFFUSION

34920 LE CRES

Réseau IMMO-DIFFUSION Numero vert centrale immobilière de Professionnels indépendants IMMO-DIFFUSION

Adhérent du Réseau IMMO DIFFUSION

IMMO-DIFFUSION