Vente Maison Corp de Ferme à rénover Vivans
6 pieces 150 m2 Terrain 3 775 m2 - France

Maison de style ancien Vivans

Contact mail
VIVANS Maison 150 m2 49 000 €

Maison Corp de Ferme à rénover
VIVANS ( 42310 )
6 pieces - 150 m2

49 000 € *(H.C.A)


Ref : ID169835

A propos du bien à vendre VIVANS (42310) - ID169835

Maison Corp de Ferme à rénover VIVANS - 150 m2
Annonce ID169835 - Mandat N° : 242621

Annonce ID169835 - Mandat N° : 242621

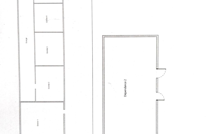
En pleine nature - Sur 3775 m2 de terrain plat et d’un seul tenant - Corps de ferme indépendant à rénover entièrement - composé : 1) - Bâtiment d’environ 200 m2 d’emprise au sol élevé d’un étage pour une partie. 2) - Deux dépendances de 45 m2 et 15 m2 - Puits sur la parcelle - Prévoir budget travaux - Calme assuré à 10 minutes à pied de la Foret de Lespinasse. - Mentions légales : Proposé à la vente à 49000 Euros (Dont 16.67% TTC d'honoraires à la charge de l'acquéreur, soit un prix hors honoraires de 42000 Euros) - CHAUVET IMMOBILIER - - Pour plus d'informations, contactez notre agence au 04.77.71.76.76

Aspect général Maison Corp de Ferme à rénover VIVANS

  • Surface hab. 150 m2
  • Nombre de pièces 6
  • Nombre de chambres N.C
  • Niveau/étage 2
  • Chauffage Aucun
  • Extérieurs Terrain de 3 775 m2
  • Exposition Sud
  • Année 1949

Aspect financier Maison Corp de Ferme à rénover VIVANS

  • Prix de vente 49 000 € TTC
  • Honoraires 16.67 % du prix TTC à la charge de l'acquéreur
  • Prix Net propriétaire 42 000 € TTC

Vieil(le) Maison Vivans nécessitant des travaux de rénovations. Ce logement est en vente mis en ligne par un agent du Réseau Immo-Diffusion de Vivans. Retrouvez d'autres biens dans la catégorie immobilier vente Maison Vivans à rénover

Performance energétique annonce ID169835

Non soumis au DPE

Gaz à effet de serre annonce ID169835

Non soumis au GES


Pour plus d'informations sur le bien ID N° : ID169835 Maison Corp de Ferme à rénover Vivans Remplissez le formulaire ou appelez notre secrétariat.

Angelique GIRAUD (Maison Corp de Ferme à rénover Vivans )

Contact Vente Maison Corp de Ferme à rénover Vivans

Envoyer
* champs requis

Pour plus d'informations sur le bien ID N° : ID169835 Maison Corp de Ferme Vivans
Remplissez le formulaire ou appelez notre secrétariat.

** Agent commercial Angelique GIRAUD Adhérent du Réseau IMMO DIFFUSION - document non contractuel
* (H.C.A) Honoraires charge acquéreur de 16.67% soit un prix hors honoraires de 42 000 Euros

Annonce ID169835 - Mandat N° : 242621

Vente Maison Corp de Ferme
VIVANS 6 pieces 150 m2
49 000 €


Maison   VIVANS  150 m2 49 000 €

En pleine nature - Sur 3775 m2 de terrain plat et d’un seul tenant - Corps de ferme indépendant à rénover entièrement - composé : 1) - Bâtiment d’environ 200 m2 d’emprise au sol élevé d’un étage pour une partie. 2) - Deux dépendances de 45 m2 et 15 m2 - Puits sur la parcelle - Prévoir budget travaux - Calme assuré à 10 minutes à pied de la Foret de Lespinasse. - Mentions légales : Proposé à la vente à 49000 Euros (Dont 16.67% TTC d'honoraires à la charge de l'acquéreur, soit un prix hors honoraires de 42000 Euros) - CHAUVET IMMOBILIER - - Pour plus d'informations, contactez notre agence au 04.77.71.76.76

Caractéristiques
Surface hab. 150 m2
Nombre de pièces 6
Nombre de chambres N.C
Niveau/étage 2
Chauffage Aucun
Extérieurs Terrain de 3 775 m2
Exposition Sud
Année 1949
DPE classé

NS

N.C
GES classé

NS

N.C



Réseau IMMO-DIFFUSION

42300 ROANNE

Réseau IMMO-DIFFUSION Numero vert centrale immobilière de Professionnels indépendants IMMO-DIFFUSION

Adhérent du Réseau IMMO DIFFUSION

IMMO-DIFFUSION