Vente Terrain TERRAIN 360 m² proche des commerce Les sables-d'olonne
360 m2 Terrain 360 m2 - France

Contact mail
LES SABLES-D'OLONNE Terrain 360 m2 154 900 €

Terrain TERRAIN 360 m² proche des commerce
LES SABLES-D'OLONNE ( 85340 )
360 m2

154 900 € *(H.C.A)


Ref : ID173125

A propos du bien à vendre LES SABLES-D'OLONNE (85340) - ID173125

Terrain TERRAIN 360 m² proche des commerce LES SABLES-D'OLONNE - 360 m2
Annonce ID173125 - Mandat N° : 000378

Annonce ID173125 - Mandat N° : 000378

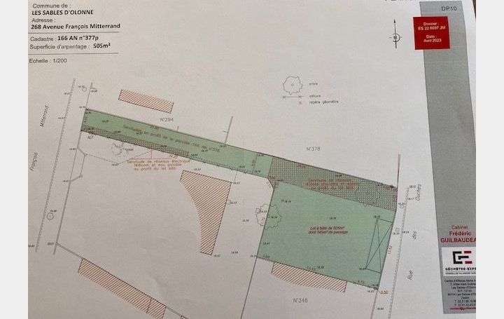
EXCLUSIVITE à la sortie du bourg d'olonne sur mer - a pieds des commerces boulangerie - pharmacie - restaurant proche de villa verde - Supermarchés à moins de 2km et GRANDE PLAGE à 4 km environ - Belle parcelle de terrain orientée EST/OUEST de 360 m2 (21 mx17 m env.) + passage d'accès privé de 145 m2 - Zone UB du PLU - CU positif - DP + bornage - viabilité en elec - HORS LOTISSEMENT LIBRE DE CONSTRUCTEURHonoraires inclus de 6.6\% TTC à la charge de l'acquéreur. Prix hors honoraires 145 000 €. Les informations sur les risques auxquels ce bien est exposé sont disponibles sur le site Géorisques : georisques.gouv.fr. - Mentions légales : Proposé à la vente à 154900 Euros (Dont 6.83% TTC d'honoraires à la charge de l'acquéreur, soit un prix hors honoraires de 145000 Euros) - Cote & Sables Immobilier - - Pour plus d'informations, contactez notre agence au 02 51 23 53 46

Aspect général Terrain TERRAIN 360 m² proche des commerce LES SABLES-D'OLONNE

  • Surface hab. 360 m2
  • Nombre de pièces N.C
  • Nombre de chambres N.C
  • Chauffage Aucun
  • Extérieurs Terrain de 360 m2

Aspect financier Terrain TERRAIN 360 m² proche des commerce LES SABLES-D'OLONNE

  • Prix de vente 154 900 € TTC
  • Honoraires 6.83 % du prix TTC à la charge de l'acquéreur
  • Prix Net propriétaire 145 000 € TTC

Performance energétique annonce ID173125

Non soumis au DPE

Gaz à effet de serre annonce ID173125

Non soumis au GES


Pour plus d'informations sur le bien ID N° : ID173125 Terrain TERRAIN 360 m² proche des commerce Les sables-d'olonne Remplissez le formulaire ou appelez notre secrétariat.

PATRICIA DESENY (Terrain TERRAIN 360 m² proche des commerce Les sables-d'olonne )

Contact Vente Terrain TERRAIN 360 m² proche des commerce Les sables-d'olonne

Envoyer
* champs requis

Pour plus d'informations sur le bien ID N° : ID173125 Terrain TERRAIN 360 m² proche des commerce Les sables-d'olonne
Remplissez le formulaire ou appelez notre secrétariat.

** Agent commercial PATRICIA DESENY Adhérent du Réseau IMMO DIFFUSION - document non contractuel
* (H.C.A) Honoraires charge acquéreur de 6.83% soit un prix hors honoraires de 145 000 Euros

Annonce ID173125 - Mandat N° : 000378

Vente Terrain TERRAIN 360 m² proche des commerce
LES SABLES-D'OLONNE 360 m2
154 900 €


Terrain   LES SABLES-D'OLONNE  360 m2 154 900 €

EXCLUSIVITE à la sortie du bourg d'olonne sur mer - a pieds des commerces boulangerie - pharmacie - restaurant proche de villa verde - Supermarchés à moins de 2km et GRANDE PLAGE à 4 km environ - Belle parcelle de terrain orientée EST/OUEST de 360 m2 (21 mx17 m env.) + passage d'accès privé de 145 m2 - Zone UB du PLU - CU positif - DP + bornage - viabilité en elec - HORS LOTISSEMENT LIBRE DE CONSTRUCTEURHonoraires inclus de 6.6\% TTC à la charge de l'acquéreur. Prix hors honoraires 145 000 €. Les informations sur les risques auxquels ce bien est exposé sont disponibles sur le site Géorisques : georisques.gouv.fr. - Mentions légales : Proposé à la vente à 154900 Euros (Dont 6.83% TTC d'honoraires à la charge de l'acquéreur, soit un prix hors honoraires de 145000 Euros) - Cote & Sables Immobilier - - Pour plus d'informations, contactez notre agence au 02 51 23 53 46

Caractéristiques
Surface hab. 360 m2
Nombre de pièces N.C
Nombre de chambres N.C
Chauffage Aucun
Extérieurs Terrain de 360 m2
DPE classé

NS

N.C
GES classé

NS

N.C



Réseau IMMO-DIFFUSION

85180 LES SABLES-D'OLONNE

Réseau IMMO-DIFFUSION Numero vert centrale immobilière de Professionnels indépendants IMMO-DIFFUSION

Adhérent du Réseau IMMO DIFFUSION

IMMO-DIFFUSION