Vente Terrain Constructible neuf Montigny-les-metz
Terrain 753 m2 - France

Terrain Constructible neuf Montigny-les-metz

Contact mail
MONTIGNY-LES-METZ Terrain  174 696 €

Terrain Constructible neuf
MONTIGNY-LES-METZ ( 57950 )


174 696 € *(H.C.V)


Ref : ID177467

A propos du bien à vendre MONTIGNY-LES-METZ (57950) - ID177467

Terrain Constructible neuf MONTIGNY-LES-METZ -
Annonce ID177467 - Mandat N° : 000231 ( Terrain Constructible neuf MONTIGNY-LES-METZ (57950))

Annonce ID177467 - Mandat N° : 000231

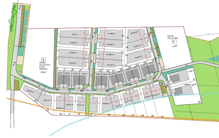
MONTIGNY LES METZ - Lotissement La Horgne Du Sablon située au Parc De La Closerie. Idéalement situé - ce nouveau lotissement se situe au croisement de Metz Magny - Metz Sablon (Gare) et Marly LOT 40 Terrain constructible de 753m2 vendu viabilisé comprenant une surface plancher de construction affecté de 220m2. Exposition Sud - façade de 12.5m. Plusieurs terrains sont actuellement disponibles: superficies comprises entre 2.03 ares et 8.30 ares et prix de vente compris entre 99 938€ et 288 770€ en fonction de leurs spécificités. Libre de constructeur. Hauteur: R+1+Toiture - pas de prescription concernant l'emprise au sol. Livraison prévue fin 1er Trimestre 2026 avec voirie provisoire. Prix affiché hors DMTO. - Mentions légales : Proposé à la vente à 174696 Euros (honoraires à la charge du vendeur) - CABINET DE L'ILE - - Pour plus d'informations, contactez notre agence au 03 87 17 85 94

Aspect général Terrain Constructible neuf MONTIGNY-LES-METZ

  • Surface hab. N.C
  • Nombre de pièces N.C
  • Nombre de chambres N.C
  • Chauffage Aucun
  • Extérieurs Terrain de 753 m2
  • Exposition Sud

Aspect financier Terrain Constructible neuf MONTIGNY-LES-METZ

  • Prix de vente 174 696 € TTC
  • Honoraires à la charge du vendeur

Le bien Terrain Constructible est un produit Neuf à Montigny-les-metz. Renseignez vous sur l'investissement dans un bien de type Terrain Constructible Neuf car il peut permettre une réduction des frais de notaires. Ce logement est en vente mis en ligne par un agent du Réseau Immo-Diffusion de Montigny-les-metz. Retrouvez d'autres biens dans la catégorie immobilier vente Terrain Montigny-les-metz neuf

Performance energétique annonce ID177467

Non soumis au DPE

Gaz à effet de serre annonce ID177467

Non soumis au GES


Pour plus d'informations sur le bien ID N° : ID177467 Terrain Constructible Montigny-les-metz Remplissez le formulaire ou appelez notre secrétariat.

Gregory MIALON (Terrain Constructible neuf Montigny-les-metz )

Contact Vente Terrain Constructible neuf Montigny-les-metz

Envoyer
* champs requis

Pour plus d'informations sur le bien ID N° : ID177467 Terrain Constructible Montigny-les-metz
Remplissez le formulaire ou appelez notre secrétariat.

** Agent commercial Gregory MIALON Adhérent du Réseau IMMO DIFFUSION - document non contractuel
*(H.C.V) : Honoraires charge vendeur

Annonce ID177467 - Mandat N° : 000231

Vente Terrain Constructible
MONTIGNY-LES-METZ
174 696 €


Terrain   MONTIGNY-LES-METZ   174 696 €

MONTIGNY LES METZ - Lotissement La Horgne Du Sablon située au Parc De La Closerie. Idéalement situé - ce nouveau lotissement se situe au croisement de Metz Magny - Metz Sablon (Gare) et Marly LOT 40 Terrain constructible de 753m2 vendu viabilisé comprenant une surface plancher de construction affecté de 220m2. Exposition Sud - façade de 12.5m. Plusieurs terrains sont actuellement disponibles: superficies comprises entre 2.03 ares et 8.30 ares et prix de vente compris entre 99 938€ et 288 770€ en fonction de leurs spécificités. Libre de constructeur. Hauteur: R+1+Toiture - pas de prescription concernant l'emprise au sol. Livraison prévue fin 1er Trimestre 2026 avec voirie provisoire. Prix affiché hors DMTO. - Mentions légales : Proposé à la vente à 174696 Euros (honoraires à la charge du vendeur) - CABINET DE L'ILE - - Pour plus d'informations, contactez notre agence au 03 87 17 85 94

Caractéristiques
Surface hab. N.C
Nombre de pièces N.C
Nombre de chambres N.C
Chauffage Aucun
Extérieurs Terrain de 753 m2
Exposition Sud
DPE classé

NS

N.C
GES classé

NS

N.C



Réseau IMMO-DIFFUSION

57050 LONGEVILLE-LES-METZ

Réseau IMMO-DIFFUSION Numero vert centrale immobilière de Professionnels indépendants IMMO-DIFFUSION

Adhérent du Réseau IMMO DIFFUSION

IMMO-DIFFUSION