Vente Appartement P3 3P 73m2 - 24m2 Sud - Parking double neuf Maurepas
3 pieces 73 m2 Terrasse 24 m2 - France

Appartement P3 3P 73m2 - 24m2 Sud - Parking double neuf Maurepas

Contact mail
MAUREPAS Appartement P3 73 m2 300 000 €

Appartement P3 3P 73m2 - 24m2 Sud - Parking double neuf
MAUREPAS ( 78310 )
3 pieces - 73 m2

300 000 € *(H.C.V)


Ref : ID171041

A propos du bien à vendre MAUREPAS (78310) - ID171041

Appartement P3 3P 73m2 - 24m2 Sud - Parking double neuf MAUREPAS - 73 m2
Annonce ID171041 - Mandat N° : 2454564 ( Appartement P3 3P 73m2 - 24m2 Sud - Parking double neuf MAUREPAS (78310))

Annonce ID171041 - Mandat N° : 2454564

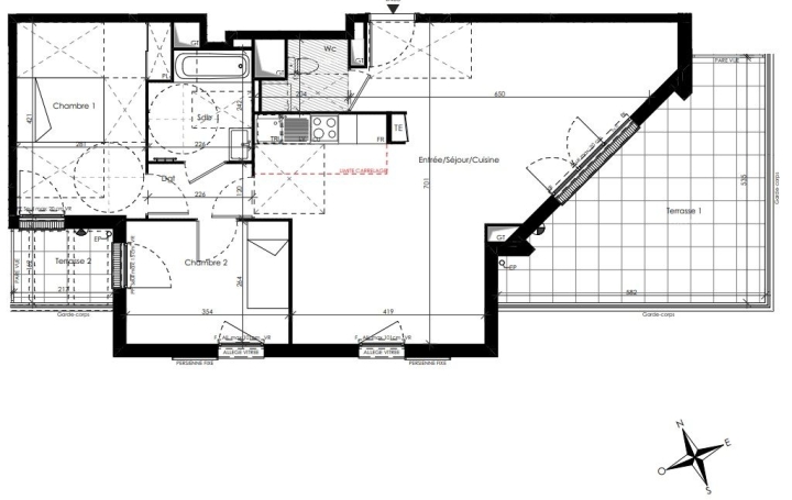
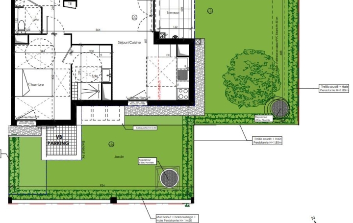
A seulement 1 - 6 km de la gare La Verrière Transilien N et U - proches de tous les commerces et écoles. Ce 3P de 73 m2 - idéal couple ou investissement locatif - comprend : Un séjour lumineux exposé Sud avec accès direct sur une terrasse de plus de 24m2. Une cuisine ouverte. 2 chambres confortable. 1 salle de bain. 1 WC. 2 parking en sous-sol inclus. Agencement optimisé sans perte d'espace. PTZ possible et frais de notaire réduit. Autres logements type 2P disponibles dans la résidence (un RDJ - 2eme et 4eme à la fin de l'annonce) . Me contacter pour toute demande complémentaire. Visite possible. - Mentions légales : Proposé à la vente à 300000 Euros (honoraires à la charge du vendeur) - Classe Energie A : 8 kWh.m2.an - (DPE ancienne version) - Bien en copropriété - Charges annuelles : 2150 Euros/an (soit 179 Euros/mois) - LOGER 9 - - Pour plus d'informations, contactez notre agence au 06 51 08 30 93

Aspect général Appartement P3 3P 73m2 - 24m2 Sud - Parking double neuf MAUREPAS

  • Surface hab. 73 m2
  • Nombre de pièces 3
  • Nombre de chambres 2
  • Niveau/étage 4
  • Chauffage Gaz Collectif
  • Extérieurs Terrasse de 24 m2
  • Exposition Sud
  • Année 2025

Infos Copropriété Appartement P3 3P 73m2 - 24m2 Sud - Parking double neuf MAUREPAS

  • Bien en copropriété Oui
  • Nombre de lots N.C (supérieur à 2)
  • Syndicat des copropriétaires Aucune procédure en cour

Aspect financier Appartement P3 3P 73m2 - 24m2 Sud - Parking double neuf MAUREPAS

  • Prix de vente 300 000 € TTC
  • Honoraires à la charge du vendeur
  • Charge de copropriété 2 150 € TTC soit ( 179,17 € / mois)

Le bien Appartement P3 3P 73m2 - 24m2 Sud - Parking double est un produit Neuf à Maurepas. Renseignez vous sur l'investissement dans un bien de type Appartement P3 3P 73m2 - 24m2 Sud - Parking double Neuf car il peut permettre une réduction des frais de notaires. Ce logement est en vente mis en ligne par un agent du Réseau Immo-Diffusion de Maurepas. Retrouvez d'autres biens dans la catégorie immobilier vente Appartement P3 Maurepas neuf

Performance energétique annonce ID171041

A

Gaz à effet de serre annonce ID171041

B


Pour plus d'informations sur le bien ID N° : ID171041 Appartement P3 3P 73m2 - 24m2 Sud - Parking double Maurepas Remplissez le formulaire ou appelez notre secrétariat.

Maximilien ZANIER (Appartement P3 3P 73m2 - 24m2 Sud - Parking double neuf Maurepas )

Contact Vente Appartement P3 3P 73m2 - 24m2 Sud - Parking double neuf Maurepas

Envoyer
* champs requis

Pour plus d'informations sur le bien ID N° : ID171041 3 Pièces 3P 73m2 - 24m2 Sud - Parking double Maurepas
Remplissez le formulaire ou appelez notre secrétariat.

** Agent immobilier Maximilien ZANIER Adhérent du Réseau IMMO DIFFUSION - document non contractuel
*(H.C.V) : Honoraires charge vendeur

Annonce ID171041 - Mandat N° : 2454564

Vente Appartement P3 3P 73m2 - 24m2 Sud - Parking double
MAUREPAS 3 pieces 73 m2
300 000 €


Appartement P3   MAUREPAS  73 m2 300 000 €

A seulement 1 - 6 km de la gare La Verrière Transilien N et U - proches de tous les commerces et écoles. Ce 3P de 73 m2 - idéal couple ou investissement locatif - comprend : Un séjour lumineux exposé Sud avec accès direct sur une terrasse de plus de 24m2. Une cuisine ouverte. 2 chambres confortable. 1 salle de bain. 1 WC. 2 parking en sous-sol inclus. Agencement optimisé sans perte d'espace. PTZ possible et frais de notaire réduit. Autres logements type 2P disponibles dans la résidence (un RDJ - 2eme et 4eme à la fin de l'annonce) . Me contacter pour toute demande complémentaire. Visite possible. - Mentions légales : Proposé à la vente à 300000 Euros (honoraires à la charge du vendeur) - Classe Energie A : 8 kWh.m2.an - (DPE ancienne version) - Bien en copropriété - Charges annuelles : 2150 Euros/an (soit 179 Euros/mois) - LOGER 9 - - Pour plus d'informations, contactez notre agence au 06 51 08 30 93

Caractéristiques
Surface hab. 73 m2
Nombre de pièces 3
Nombre de chambres 2
Niveau/étage 4
Chauffage Gaz Collectif
Extérieurs Terrasse de 24 m2
Exposition Sud
Année 2025
DPE classé

A

8.00 (KWH/M2/AN)
GES classé

B

8.00 (KWH/M2/AN)



Réseau IMMO-DIFFUSION

93170 BAGNOLET

Réseau IMMO-DIFFUSION Numero vert centrale immobilière de Professionnels indépendants IMMO-DIFFUSION

Adhérent du Réseau IMMO DIFFUSION

IMMO-DIFFUSION