Vente Appartement P3 3P proche Bry - balcon et parking neuf Noisy-le-grand
3 pieces 63 m2 Balcon 6 m2 - France

Appartement P3 3P proche Bry - balcon et parking neuf Noisy-le-grand

Contact mail
NOISY-LE-GRAND Appartement P3 63 m2 350 000 €

Appartement P3 3P proche Bry - balcon et parking neuf
NOISY-LE-GRAND ( 93160 )
3 pieces - 63 m2

350 000 € *(H.C.V)


Ref : ID180211

A propos du bien à vendre NOISY-LE-GRAND (93160) - ID180211

Appartement P3 3P proche Bry - balcon et parking neuf NOISY-LE-GRAND - 63 m2
Annonce ID180211 ( Appartement P3 3P proche Bry - balcon et parking neuf NOISY-LE-GRAND (93160))

Annonce ID180211

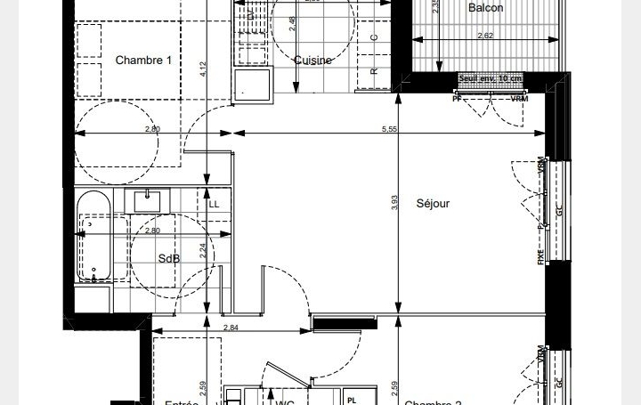
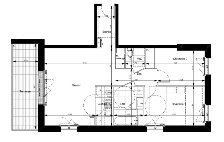
A seulement 1 - 2km des gares RER A Bry sur Marne et Mont d'Est Noisy le Grand . A proximité du centre-ville - tous commerces et écoles. 3 PIÈCES LUMINEUX AVEC BALCON – COUP DE CŒUR ! Superbe appartement de 63 - 30 m2 - parfaitement agencé - dans une résidence moderne Il offre une entrée avec rangements - un séjour spacieux et lumineux (21 - 69 m2) avec cuisine ouverte conviviale - idéal pour recevoir. Profitez d’un balcon de 6 - 05 m2 pour vos moments de détente Côté nuit : 2 chambres confortables - une salle de bain et WC séparés. 1 parking en sous-sol Plan optimisé Belle luminosité Extérieur agréable Bien rare - idéal pour vivre ou investir. À visiter sans tarder ! Au biens disponibles sur la résidence et le secteur. - Mentions légales : Proposé à la vente à 350000 Euros (honoraires à la charge du vendeur) - Classe Energie A : 3 kWh.m2.an - (DPE ancienne version) - Bien en copropriété - Charges annuelles : 2216 Euros/an (soit 185 Euros/mois) - LOGER 9 - - Pour plus d'informations, contactez notre agence au 06 51 08 30 93

Aspect général Appartement P3 3P proche Bry - balcon et parking neuf NOISY-LE-GRAND

  • Surface hab. 63 m2
  • Nombre de pièces 3
  • Nombre de chambres 2
  • Niveau/étage 1
  • Chauffage Aucun Collectif
  • Extérieurs Balcon de 6 m2
  • Exposition Ouest
  • Année 2025

Infos Copropriété Appartement P3 3P proche Bry - balcon et parking neuf NOISY-LE-GRAND

  • Bien en copropriété Oui
  • Nombre de lots N.C (supérieur à 2)
  • Syndicat des copropriétaires Aucune procédure en cour

Aspect financier Appartement P3 3P proche Bry - balcon et parking neuf NOISY-LE-GRAND

  • Prix de vente 350 000 € TTC
  • Honoraires à la charge du vendeur
  • Charge de copropriété 2 216 € TTC soit ( 184,67 € / mois)

Le bien Appartement P3 3P proche Bry - balcon et parking est un produit Neuf à Noisy-le-grand. Renseignez vous sur l'investissement dans un bien de type Appartement P3 3P proche Bry - balcon et parking Neuf car il peut permettre une réduction des frais de notaires. Ce logement est en vente mis en ligne par un agent du Réseau Immo-Diffusion de Noisy-le-grand. Retrouvez d'autres biens dans la catégorie immobilier vente Appartement P3 Noisy-le-grand neuf

Performance energétique annonce ID180211

A

Gaz à effet de serre annonce ID180211

A


Pour plus d'informations sur le bien ID N° : ID180211 Appartement P3 3P proche Bry - balcon et parking Noisy-le-grand Remplissez le formulaire ou appelez notre secrétariat.

Maximilien ZANIER (Appartement P3 3P proche Bry - balcon et parking neuf Noisy-le-grand )

Contact Vente Appartement P3 3P proche Bry - balcon et parking neuf Noisy-le-grand

Envoyer
* champs requis

Pour plus d'informations sur le bien ID N° : ID180211 3 Pièces 3P proche Bry - balcon et parking Noisy-le-grand
Remplissez le formulaire ou appelez notre secrétariat.

** Agent immobilier Maximilien ZANIER Adhérent du Réseau IMMO DIFFUSION - document non contractuel
*(H.C.V) : Honoraires charge vendeur

Annonce ID180211

Vente Appartement P3 3P proche Bry - balcon et parking
NOISY-LE-GRAND 3 pieces 63 m2
350 000 €


Appartement P3   NOISY-LE-GRAND  63 m2 350 000 €

A seulement 1 - 2km des gares RER A Bry sur Marne et Mont d'Est Noisy le Grand . A proximité du centre-ville - tous commerces et écoles. 3 PIÈCES LUMINEUX AVEC BALCON – COUP DE CŒUR ! Superbe appartement de 63 - 30 m2 - parfaitement agencé - dans une résidence moderne Il offre une entrée avec rangements - un séjour spacieux et lumineux (21 - 69 m2) avec cuisine ouverte conviviale - idéal pour recevoir. Profitez d’un balcon de 6 - 05 m2 pour vos moments de détente Côté nuit : 2 chambres confortables - une salle de bain et WC séparés. 1 parking en sous-sol Plan optimisé Belle luminosité Extérieur agréable Bien rare - idéal pour vivre ou investir. À visiter sans tarder ! Au biens disponibles sur la résidence et le secteur. - Mentions légales : Proposé à la vente à 350000 Euros (honoraires à la charge du vendeur) - Classe Energie A : 3 kWh.m2.an - (DPE ancienne version) - Bien en copropriété - Charges annuelles : 2216 Euros/an (soit 185 Euros/mois) - LOGER 9 - - Pour plus d'informations, contactez notre agence au 06 51 08 30 93

Caractéristiques
Surface hab. 63 m2
Nombre de pièces 3
Nombre de chambres 2
Niveau/étage 1
Chauffage Aucun Collectif
Extérieurs Balcon de 6 m2
Exposition Ouest
Année 2025
DPE classé

A

3.00 (KWH/M2/AN)
GES classé

A

3.00 (KWH/M2/AN)



Réseau IMMO-DIFFUSION

93170 BAGNOLET

Réseau IMMO-DIFFUSION Numero vert centrale immobilière de Professionnels indépendants IMMO-DIFFUSION

Adhérent du Réseau IMMO DIFFUSION

IMMO-DIFFUSION