Vente Appartement P4 4 pièces de 93 m² Sud neuf Bondy
4 pieces 93 m2 Terrasse 46 m2 - France

Appartement P4 4 pièces de 93 m² Sud neuf Bondy

Contact mail
BONDY Appartement P4 93 m2 345 000 €

Appartement P4 4 pièces de 93 m² Sud neuf
BONDY ( 93140 )
4 pieces - 93 m2

345 000 € *(H.C.V)


Ref : ID181084

A propos du bien à vendre BONDY (93140) - ID181084

Appartement P4 4 pièces de 93 m² Sud neuf BONDY - 93 m2
Annonce ID181084 ( Appartement P4 4 pièces de 93 m² Sud neuf BONDY (93140))

Annonce ID181084

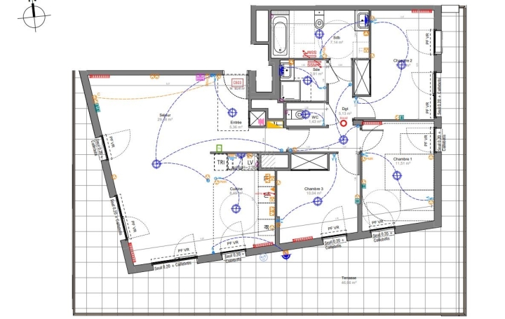
A 5mn du Tram T1 Pont de Bondy et de l'autoroute A3 - environnement agréable et verdoyant - proche du centre-ville - face au Canal de l'Ourcq pour rejoindre Paris en vélo. Commerces - écoles - hôpital à proximité et Gare RER E. Appartement 4 pièces avec terrasse 46m2 Sud vue canal – 2 parkings en sous-sol inclus Magnifique 4 pièces de 93 m2 habitables au 6ème - offrant de beaux volumes et une agréable luminosité vue sur canal de l'Ourcq. Distribution optimisée desservant un vaste séjour de 29 m2 - idéal pour vos moments de convivialité - prolongé par une grande terrasse de 46 m2 exposée sud - parfaite pour profiter des beaux jours. La cuisine indépendante et peut être ouverte selon vos envies. Côté nuit - l’appartement propose 3 chambres confortables - idéales pour une famille. 1 salle de bains - 1 salle d’eau - 1 WC séparé - 1 dégagement avec rangements. Photos informatives. Plan contractuel. Visite sur demande. - Mentions légales : Proposé à la vente à 345000 Euros (honoraires à la charge du vendeur) - Classe Energie A : 1 kWh.m2.an - (DPE ancienne version) - Bien en copropriété - Charges annuelles : 3124 Euros/an (soit 260 Euros/mois) - LOGER 9 - - Pour plus d'informations, contactez notre agence au 06 51 08 30 93

Aspect général Appartement P4 4 pièces de 93 m² Sud neuf BONDY

  • Surface hab. 93 m2
  • Nombre de pièces 4
  • Nombre de chambres 3
  • Niveau/étage 6
  • Chauffage Gaz Collectif
  • Extérieurs Terrasse de 46 m2
  • Exposition Sud Ouest
  • Année 2025

Infos Copropriété Appartement P4 4 pièces de 93 m² Sud neuf BONDY

  • Bien en copropriété Oui
  • Nombre de lots N.C (supérieur à 2)
  • Syndicat des copropriétaires Aucune procédure en cour

Aspect financier Appartement P4 4 pièces de 93 m² Sud neuf BONDY

  • Prix de vente 345 000 € TTC
  • Honoraires à la charge du vendeur
  • Charge de copropriété 3 124 € TTC soit ( 260,33 € / mois)

Le bien Appartement P4 4 pièces de 93 m² Sud est un produit Neuf à Bondy. Renseignez vous sur l'investissement dans un bien de type Appartement P4 4 pièces de 93 m² Sud Neuf car il peut permettre une réduction des frais de notaires. Ce logement est en vente mis en ligne par un agent du Réseau Immo-Diffusion de Bondy. Retrouvez d'autres biens dans la catégorie immobilier vente Appartement P4 Bondy neuf

Performance energétique annonce ID181084

A

Gaz à effet de serre annonce ID181084

A


Pour plus d'informations sur le bien ID N° : ID181084 Appartement P4 4 pièces de 93 m² Sud Bondy Remplissez le formulaire ou appelez notre secrétariat.

Maximilien ZANIER (Appartement P4 4 pièces de 93 m² Sud neuf Bondy )

Contact Vente Appartement P4 4 pièces de 93 m² Sud neuf Bondy

Envoyer
* champs requis

Pour plus d'informations sur le bien ID N° : ID181084 4 Pièces 4 pièces de 93 m² Sud Bondy
Remplissez le formulaire ou appelez notre secrétariat.

** Agent immobilier Maximilien ZANIER Adhérent du Réseau IMMO DIFFUSION - document non contractuel
*(H.C.V) : Honoraires charge vendeur

Annonce ID181084

Vente Appartement P4 4 pièces de 93 m² Sud
BONDY 4 pieces 93 m2
345 000 €


Appartement P4   BONDY  93 m2 345 000 €

A 5mn du Tram T1 Pont de Bondy et de l'autoroute A3 - environnement agréable et verdoyant - proche du centre-ville - face au Canal de l'Ourcq pour rejoindre Paris en vélo. Commerces - écoles - hôpital à proximité et Gare RER E. Appartement 4 pièces avec terrasse 46m2 Sud vue canal – 2 parkings en sous-sol inclus Magnifique 4 pièces de 93 m2 habitables au 6ème - offrant de beaux volumes et une agréable luminosité vue sur canal de l'Ourcq. Distribution optimisée desservant un vaste séjour de 29 m2 - idéal pour vos moments de convivialité - prolongé par une grande terrasse de 46 m2 exposée sud - parfaite pour profiter des beaux jours. La cuisine indépendante et peut être ouverte selon vos envies. Côté nuit - l’appartement propose 3 chambres confortables - idéales pour une famille. 1 salle de bains - 1 salle d’eau - 1 WC séparé - 1 dégagement avec rangements. Photos informatives. Plan contractuel. Visite sur demande. - Mentions légales : Proposé à la vente à 345000 Euros (honoraires à la charge du vendeur) - Classe Energie A : 1 kWh.m2.an - (DPE ancienne version) - Bien en copropriété - Charges annuelles : 3124 Euros/an (soit 260 Euros/mois) - LOGER 9 - - Pour plus d'informations, contactez notre agence au 06 51 08 30 93

Caractéristiques
Surface hab. 93 m2
Nombre de pièces 4
Nombre de chambres 3
Niveau/étage 6
Chauffage Gaz Collectif
Extérieurs Terrasse de 46 m2
Exposition Sud Ouest
Année 2025
DPE classé

A

1.00 (KWH/M2/AN)
GES classé

A

1.00 (KWH/M2/AN)



Réseau IMMO-DIFFUSION

93170 BAGNOLET

Réseau IMMO-DIFFUSION Numero vert centrale immobilière de Professionnels indépendants IMMO-DIFFUSION

Adhérent du Réseau IMMO DIFFUSION

IMMO-DIFFUSION