Vente Appartement P3 3/4P -loggia Ouest - parking - cave Montreuil
3 pieces 65 m2 7 m2 - France

Contact mail
MONTREUIL Appartement P3 65 m2 345 000 €

Appartement P3 3/4P -loggia Ouest - parking - cave
MONTREUIL ( 93100 )
3 pieces - 65 m2

345 000 € *(H.C.V)


Ref : ID166034

A propos du bien à vendre MONTREUIL (93100) - ID166034

Appartement P3 3/4P -loggia Ouest - parking - cave MONTREUIL - 65 m2
Annonce ID166034

Annonce ID166034

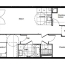
Proximité Parc Montreau. 1km gare RER E Rosny Sous Bois . 2km station Métro 11 la Dhuys direct République et Chatelet. 3km métro 9 Mairie de Montreuil . Accès facile autorotes A86 et A3 Superbe appartement 3/4P de 64m2 situé au 3ème. Belle luminosité avec une exposition ouest. Aucune perte de place. Prestations de qualité - Parking et caveinclus. Jardins partagés. Locaux vélos. Autres logements sont disponibles dans la résidence - du 2P au 5P. Me contacter pour toute demande complémentaire. Prix en TVA réduite. - Mentions légales : Proposé à la vente à 345000 Euros (honoraires à la charge du vendeur) - Bien en copropriété - Charges annuelles : 2200 Euros/an (soit 183 Euros/mois) - LOGER 9 - - Pour plus d'informations, contactez notre agence au 06 51 08 30 93

Aspect général Appartement P3 3/4P -loggia Ouest - parking - cave MONTREUIL

  • Surface hab. 65 m2
  • Nombre de pièces 3
  • Nombre de chambres 2
  • Niveau/étage 3
  • Chauffage Gaz Individuel
  • Extérieurs 7 m2
  • Exposition Ouest
  • Année 2025

Infos Copropriété Appartement P3 3/4P -loggia Ouest - parking - cave MONTREUIL

  • Bien en copropriété Oui
  • Nombre de lots N.C (supérieur à 2)
  • Syndicat des copropriétaires Aucune procédure en cour

Aspect financier Appartement P3 3/4P -loggia Ouest - parking - cave MONTREUIL

  • Prix de vente 345 000 € TTC
  • Honoraires à la charge du vendeur
  • Charge de copropriété 2 200 € TTC soit ( 183,33 € / mois)

Performance energétique annonce ID166034

DPE non communiqué

Gaz à effet de serre annonce ID166034

B


Pour plus d'informations sur le bien ID N° : ID166034 Appartement P3 3/4P -loggia Ouest - parking - cave Montreuil Remplissez le formulaire ou appelez notre secrétariat.

Maximilien ZANIER (Appartement P3 3/4P -loggia Ouest - parking - cave Montreuil )

Contact Vente Appartement P3 3/4P -loggia Ouest - parking - cave Montreuil

Envoyer
* champs requis

Pour plus d'informations sur le bien ID N° : ID166034 3 Pièces 3/4P -loggia Ouest - parking - cave Montreuil
Remplissez le formulaire ou appelez notre secrétariat.

** Agent immobilier Maximilien ZANIER Adhérent du Réseau IMMO DIFFUSION - document non contractuel
*(H.C.V) : Honoraires charge vendeur

Annonce ID166034

Vente Appartement P3 3/4P -loggia Ouest - parking - cave
MONTREUIL 3 pieces 65 m2
345 000 €


Appartement P3   MONTREUIL  65 m2 345 000 €

Proximité Parc Montreau. 1km gare RER E Rosny Sous Bois . 2km station Métro 11 la Dhuys direct République et Chatelet. 3km métro 9 Mairie de Montreuil . Accès facile autorotes A86 et A3 Superbe appartement 3/4P de 64m2 situé au 3ème. Belle luminosité avec une exposition ouest. Aucune perte de place. Prestations de qualité - Parking et caveinclus. Jardins partagés. Locaux vélos. Autres logements sont disponibles dans la résidence - du 2P au 5P. Me contacter pour toute demande complémentaire. Prix en TVA réduite. - Mentions légales : Proposé à la vente à 345000 Euros (honoraires à la charge du vendeur) - Bien en copropriété - Charges annuelles : 2200 Euros/an (soit 183 Euros/mois) - LOGER 9 - - Pour plus d'informations, contactez notre agence au 06 51 08 30 93

Caractéristiques
Surface hab. 65 m2
Nombre de pièces 3
Nombre de chambres 2
Niveau/étage 3
Chauffage Gaz Individuel
Extérieurs 7 m2
Exposition Ouest
Année 2025
DPE classé

NC

N.C
GES classé

B

N.C



Réseau IMMO-DIFFUSION

93170 BAGNOLET

Réseau IMMO-DIFFUSION Numero vert centrale immobilière de Professionnels indépendants IMMO-DIFFUSION

Adhérent du Réseau IMMO DIFFUSION

IMMO-DIFFUSION