Vente Terrain avec jardin et bois Hochfelden
1 516 m2 Jardin 3 048 m2 - France

Contact mail
HOCHFELDEN Terrain 1 516 m2 229 000 €

Terrain avec jardin et bois
HOCHFELDEN ( 67270 )
1 516 m2


Ref : ID127453

A propos du bien à vendre HOCHFELDEN (67270) - ID127453

Terrain avec jardin et bois HOCHFELDEN - 1 516 m2
Annonce ID127453

Annonce ID127453

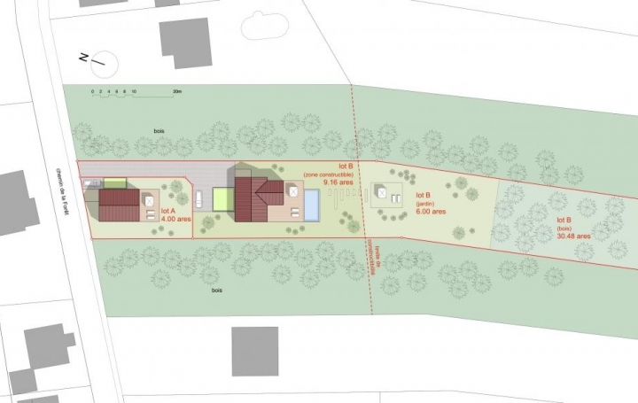
Rare à la vente. Au calme et à proximité du canal - ce terrain est situé rue de la Forêt à Hochfelden. Il se compose de la manière suivante : une partie constructible de 9 - 16 ares + un jardin de 6 - 00 ares non constructible + un bois de 30 - 48 ares en complément soit un ensemble foncier de 45 - 64 ares. Ce terrain est en seconde ligne avec un accès privatif de 4 - 00 mètres et sera livré déboisé et viabilisé : eau - potable - assainissement - télécom et électricité. Pour maison individuelle uniquement. Recevez un dossier complet par mail sur simple demande. - Mentions légales : Proposé à la vente à 229000 Euros (honoraires à la charge du vendeur)

Aspect général Terrain avec jardin et bois HOCHFELDEN

  • Surface hab. 1 516 m2
  • Nombre de pièces N.C
  • Nombre de chambres N.C
  • Chauffage Aucun
  • Extérieurs Jardin de 3 048 m2
  • Exposition Sud

Performance energétique annonce ID127453

DPE non communiqué

Gaz à effet de serre annonce ID127453

GES non communiqué


Pour plus d'informations sur le bien ID N° : ID127453 Terrain avec jardin et bois Hochfelden Remplissez le formulaire ou appelez notre secrétariat.

Contacter notre Chargé d'affaire pour le bien ID127453 (Terrain avec jardin et bois Hochfelden )

Contact Vente Terrain avec jardin et bois Hochfelden

Envoyer
* champs requis

Pour plus d'informations sur le bien ID N° : ID127453 Terrain avec jardin et bois Hochfelden
Remplissez le formulaire ou appelez notre secrétariat.

*(H.C.V) : Honoraires charge vendeur

Annonce ID127453

Vente Terrain avec jardin et bois
HOCHFELDEN 1 516 m2
229 000 €


Terrain   HOCHFELDEN  1 516 m2

Rare à la vente. Au calme et à proximité du canal - ce terrain est situé rue de la Forêt à Hochfelden. Il se compose de la manière suivante : une partie constructible de 9 - 16 ares + un jardin de 6 - 00 ares non constructible + un bois de 30 - 48 ares en complément soit un ensemble foncier de 45 - 64 ares. Ce terrain est en seconde ligne avec un accès privatif de 4 - 00 mètres et sera livré déboisé et viabilisé : eau - potable - assainissement - télécom et électricité. Pour maison individuelle uniquement. Recevez un dossier complet par mail sur simple demande. - Mentions légales : Proposé à la vente à 229000 Euros (honoraires à la charge du vendeur)

Caractéristiques
Surface hab. 1 516 m2
Nombre de pièces N.C
Nombre de chambres N.C
Chauffage Aucun
Extérieurs Jardin de 3 048 m2
Exposition Sud
DPE classé

NC

N.C
GES classé

NC

N.C



Réseau IMMO-DIFFUSION

67000 STRASBOURG

IMMO-DIFFUSION